Welcome to the Schenley Farms Historic District of Pittsburgh! Although the neighborhood is turn of the century vintage, the home is completely up to date with all modern conveniences, comforts, and connectivity!
This home offers great proximity to the all the energy and excitement of Oakland, but the grounds feel open and semi-secluded.
IDEAL FOR: Families visiting PITT or Carnegie Mellon University, groups traveling for work (High speed Wi-Fi + three workspaces are included), wedding guests
Here is the layout of the home:
Lower Level – Play, Lounge & Refresh
The fully finished lower level offers a private retreat for fun and function. A theater room with plush seating and an 85″ screen sets the stage for unforgettable movie nights. This space doubles as a fourth bedroom, and the ideal hangout for your younger guests. This level also includes a full laundry area ensure comfort and convenience for longer stays.
Main Floor – Grand & Inviting
Step into a sun-drenched living space where high-end design meets everyday comfort. The open-concept layout connects a dramatic coffered-ceiling living room, elegant dining area, and a chef’s kitchen built for real cooking. Just off the living room, a glass-lined sunroom doubles as a bright workspace. Outside, a large patio, fire pit, and detached spa house (hot tub + sauna) expand the experience.
Second Floor – Sleep Well, Live Well
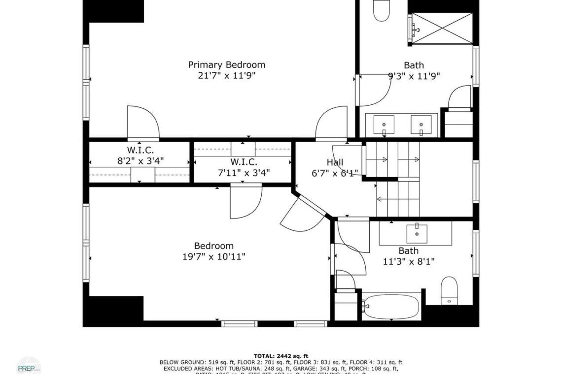
Two spacious bedrooms—each with a walk-in closet—anchor this floor, accompanied by two luxurious full bathrooms. Both baths feature elevated finishes and spa-style showers, with one offering a soaking tub. This level provides both privacy and comfort for families or couples traveling together.
Third Floor – A Private Escape
At the top of the house, the oversized third bedroom includes a private ensuite bath and walk-in closet. Flooded with light and completely separate from the rest of the home, it’s perfect for guests who value quiet and privacy.
~AMENITIES~
✓ Sauna
✓ Hot tub
✓ Entry: No keys needed, Smart lock with code
✓ Security: Outside cameras on premises
✓ Communication: We’re always available
✓ Parking: Large driveway with 4 available spaces
✓ 4 Bedroom House – sleeps up to 10 (1 king, 2 queens, 4 twin beds, 1 crib)
✓ 4 Bathrooms – 3 full and 1 powder room (Three bathrooms are ensuites)
✓ Workspace: High Speed internet, 2 bedrooms have desks + another dedicated workspace
✓ Laundry: Free, in basement
✓ Kitchen: Loaded with everything you’ll need to cook anything
✓ Coffee: Plenty of K-cups and ground coffee, Keurig, drip coffee pot, and French Press
✓ Entertainment: 65″ Roku TV in living room and 85″ Roku TV in basement bedroom/media room + 40″ Roku TVs in the three other bedrooms
✓ HVAC: Central air + heat with indoor gas fireplace + a supplemental ductless mini-split for the third floor
✓ Outdoor space: Private patio & backyard with fire pit
No events/parties allowed, only booked guests can be there at any time. Pet fees for pre-approved pets are $25 per night, up to two pets and are non-refundable.
To be certain that our home is a good fit for your stay please read our House Rules and send us a message before booking.
The entire house is accessible aside from two locked areas in the basement.
I’m committed to doing whatever I can to make your stay the best it can be. I absolutely love this city and would be delighted to share with you some of my favorite restaurants, museums, parks or attractions. I respect your privacy and will communicate as little or as much as you wish.
Oakland is the healthcare and academic hub of the city, and it is also a major cultural and historic destination. The home itself is situated in the Schenley Farms National Historic District.
Located right on the bus route, with access to express buses for downtown destinations. With numerous colleges nearby, Uber is all over this area, all the time.
You can easily walk to everything in the neighborhood – colleges, restaurants, historic sites, shopping, etc…
Between Pitt and Carnegie Mellon campuses and walking distance to many green areas. Enjoy the historic architecture. Many cultural and athletic attractions are nearby. You’re only a 20-minute walk from Schenley Park which has the Phipps Conservatory and Botanical Gardens, a golf course, and an ice skating rink. On the way, you’ll pass by one of the most familiar buildings in the Pittsburgh skyline, the Cathedral of Learning, and the Carnegie Museum of Art. The location really can’t be beat!
Amenities